Yamnuska Village
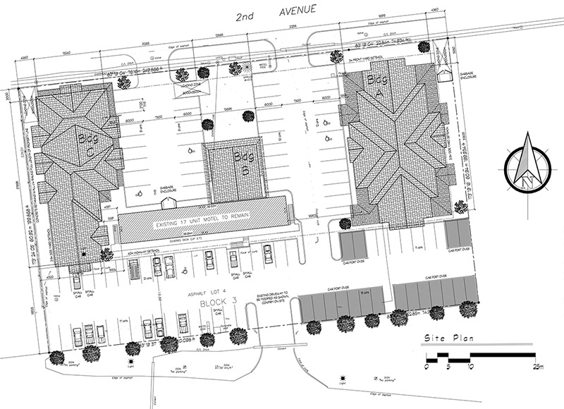
Yamnuska Village at Dead Man's Flats is a proposed condo & commercial development in the hamlet of Dead Man's Flats. Three unique buildings will bring a mix of mountain style to the gateway of the Bow Valley and the backcountry beyond.
- Yamnuska Village - Building A: Three stories containing a proposed 40 seat Pub & Restaurant on the main floor and 17 condo accommodation units.
- Yamnuska Village - Building B: Two stories containing a proposed 24 seat coffee shop on the main floor and 4 condo accommodation units.
- Yamnuska Village - Building C: Three stories containing 1,000 to 1,500 square feet of retail space and 17 accommodation units.


Download our Concept Plan here.